旭市足川中古物件
おすすめポイント
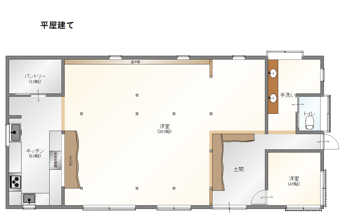
土地1,000坪!!民泊やプライベートレストランとしても利用できる古民家ヴィラです♪
プロ仕様を極めたキッチン、最大15名超を収容するゲスト棟あり☆
物件や契約状況など
お気軽にお問い合わせください
この物件を⾒た⼈はこんな物件もチェックしています
物件概要
- 価格
- 3,500万円
- 所在地
- 千葉県旭市足川
- 交通
- JR総武本線/旭駅 3,600m(車で7分)
- 土地面積
- 3528.7㎡
- 坪面積
- 1067.43坪
- 建物面積
- 平屋:1LDK(92.74㎡) 2階建:4部屋(89.42㎡)
- 構造/階建て
- ・木造 亜鉛メッキ鋼板/平屋建て
・木造 瓦葺 /2階建 - 築年月
- 平屋:昭和42年9月築
2階建:平成2年12月
その他
- 接道
- 北側公道 幅員約4.4m道路に約10m接道
- 都市計画
- 非線引き区域
- 用途地域
- 無指定
- 地目
- 宅地
- 引渡し(時期)
- 相談
- 設備
- 電気/プロパンガス/井戸/浄化槽
- 備考
- ・現状有姿売買とする
・売主の契約不適合責任免除とします
・売主による境界明示は行わないものとする
- 取引態様
- 媒介
※上記において、図面および面積表示が現状と異なる場合には、現状を優先するものとします。









